Industriale
ID 710658Magazzino logistico in locazione a Tor Cervara (Roma)
Roma
Canone su richiesta
- Spazio disponibile4592 - 12.511 m²
- DisponibilitàImmediata

Renato Loffredo
Dettagli dell'agente

Bianca Maria Brinza
Dettagli dell'agente

Claudia Adorno
Producer Agency Leasing
Dettagli dell'agente
- Descrizione
- Caratteristiche
- Location
- Planimetrie
- Brochure
- Agenti
- Contatta JLL per ulteriori informazioni
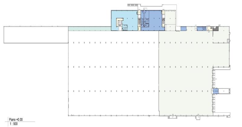
Descrizione
Il complesso rappresenta una struttura senza eguali, un asset multifunzionale concepito per rispondere alle necessità della logistica in città.
La superficie complessiva si sviluppa su oltre 16.600 mq di cui:
- 4.600 mq con un'altezza di 5,7 metri, da utilizzare come area commerciale con accesso da via Tor Cervara
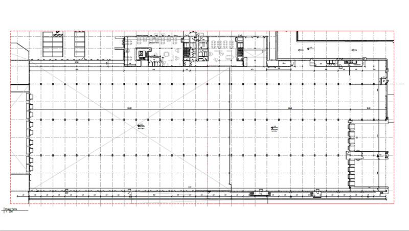
- 6.850 mq, con un'altezza utile di 11,2 metri per una logistica standard caratterizzata dalla dotazione del sistema sprinkler
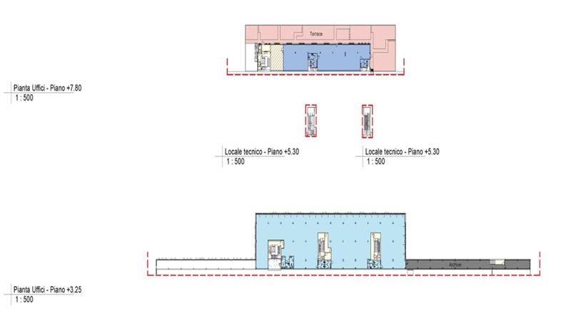
- 3.080 mq di uffici suddivisi tra il piano terra e il primo piano
oltre a locali tecnici e una terrazza ad uso degli uffici.
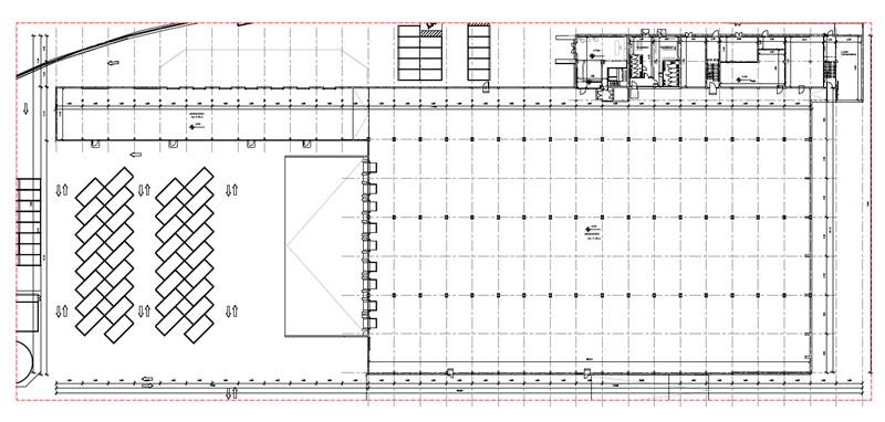
Spazi esterni e di manovra molto ampi e sicuri durante le operazioni di carico e scarico merci.
Facile sosta anche per furgoni commerciali e presenza di colonnine elettriche che servono 32 stazioni di ricarica.
Certificazione BREEAM Very Good
Spazi disponibili
Location
ll Centro Logistico di Tor Cervara è situato vicino al Grande Raccordo Anulare (GRA), a solo 1 km dallo svincolo dell'A24, e permette di raggiungere facilmente tutta Roma. La vicinanza alle principali arterie autostradali rende favorevole anche il collegamento da fuori Roma, verso il centro città. Si tratta di una soluzione di logistica urbana che contribuisce alla riduzione della circolazione dei mezzi pesanti, favorendo invece l'uso di veicoli elettrici.
Agenti

Renato Loffredo
Dettagli dell'agente

Bianca Maria Brinza
Dettagli dell'agente

Claudia Adorno
Producer Agency Leasing
Dettagli dell'agente

















