Industriale
ID 710683Immobile logistico in locazione a Pieve Emanuele (Milano)
Pieve Emanuele
Canone su richiesta
- Spazio disponibile8770 m²
- DisponibilitàSu richiesta

Renato Loffredo
Dettagli dell'agente

Marco Ceriani
Consultant Logistic Agency
Dettagli dell'agente
- Descrizione
- Caratteristiche
- Location
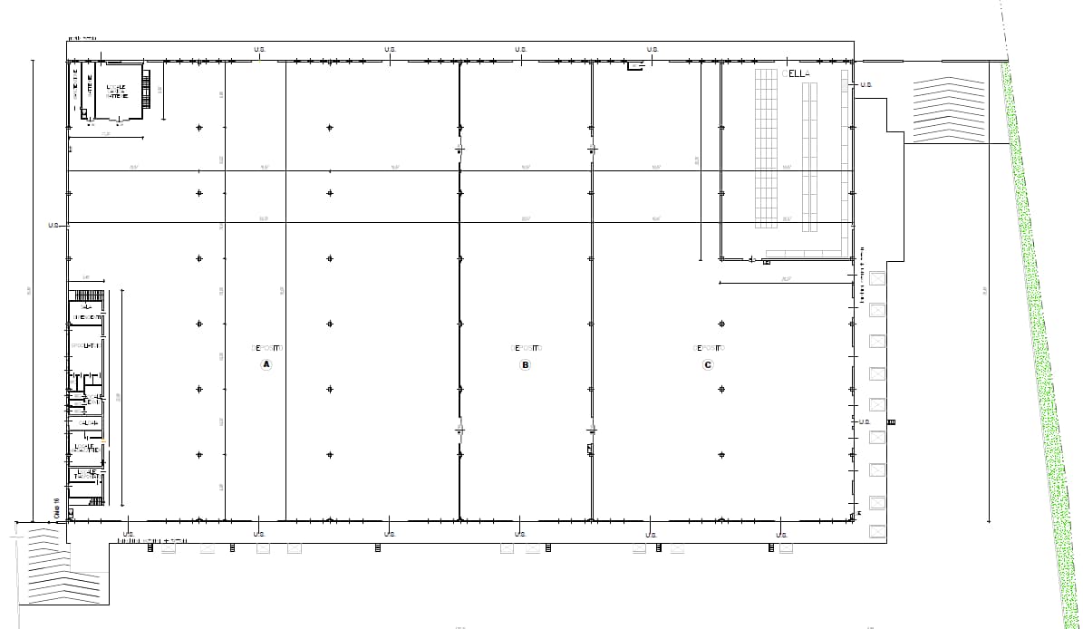
- Planimetria
- Brochure
- Agenti
- Contatta JLL per ulteriori informazioni
Descrizione
Immobile logistico disponibile in locazione sito a Pieve Emanuele (Milano), location strategica per le attività di logistica nella provincia di Milano.
La posizione baricentrica del sito permette una connessione diretta con i mercati circostanti efficientando così il trasporto delle merci e rendendo la proprietà particolarmente appetibile per operatori 3PL, oltre che per il mondo della GDO, retail ed e-commerce.
CARATTERISTICHE TECNICHE:
SLP Totale: 8,770 mq
SLP Magazzino: 8,175 mq
SLP Uffici, servizi e locali tecnici: 595 mq
Altezza utile interna: 7 mt
Baie di carico (esterne): 18 (12 per bilici e 6 per van)
Portoni: 7+6
Immobile stand alone dotato di ampia area esterna ad uso esclusivo
Spazi disponibili
Location
L’asset risulta essere ben posizionato sia per l’immediato collegamento con il capoluogo lombardo che per la vicinanza alle principali vie di comunicazione che si diramano nella parte Sud della provincia, beneficiando così della prossimità alle seguenti direttrici autostradali: · A50 Tangenziale Ovest di Milano · A1 Milano-Napoli · A7 Milano- Genova
Agenti

Renato Loffredo
Dettagli dell'agente

Marco Ceriani
Consultant Logistic Agency
Dettagli dell'agente








