Industriale
ID 710717Immobile logistico esistente in locazione a Carisio, Vercelli
Carisio
Canone su richiesta
- Spazio disponibile19.750 m²
- DisponibilitàImmediata

Renato Loffredo
Dettagli dell'agente

Marco Ceriani
Consultant Logistic Agency
Dettagli dell'agente
- Descrizione
- Caratteristiche
- Location
- Planimetria
- Brochure
- Agenti
- Contatta JLL per ulteriori informazioni
Descrizione
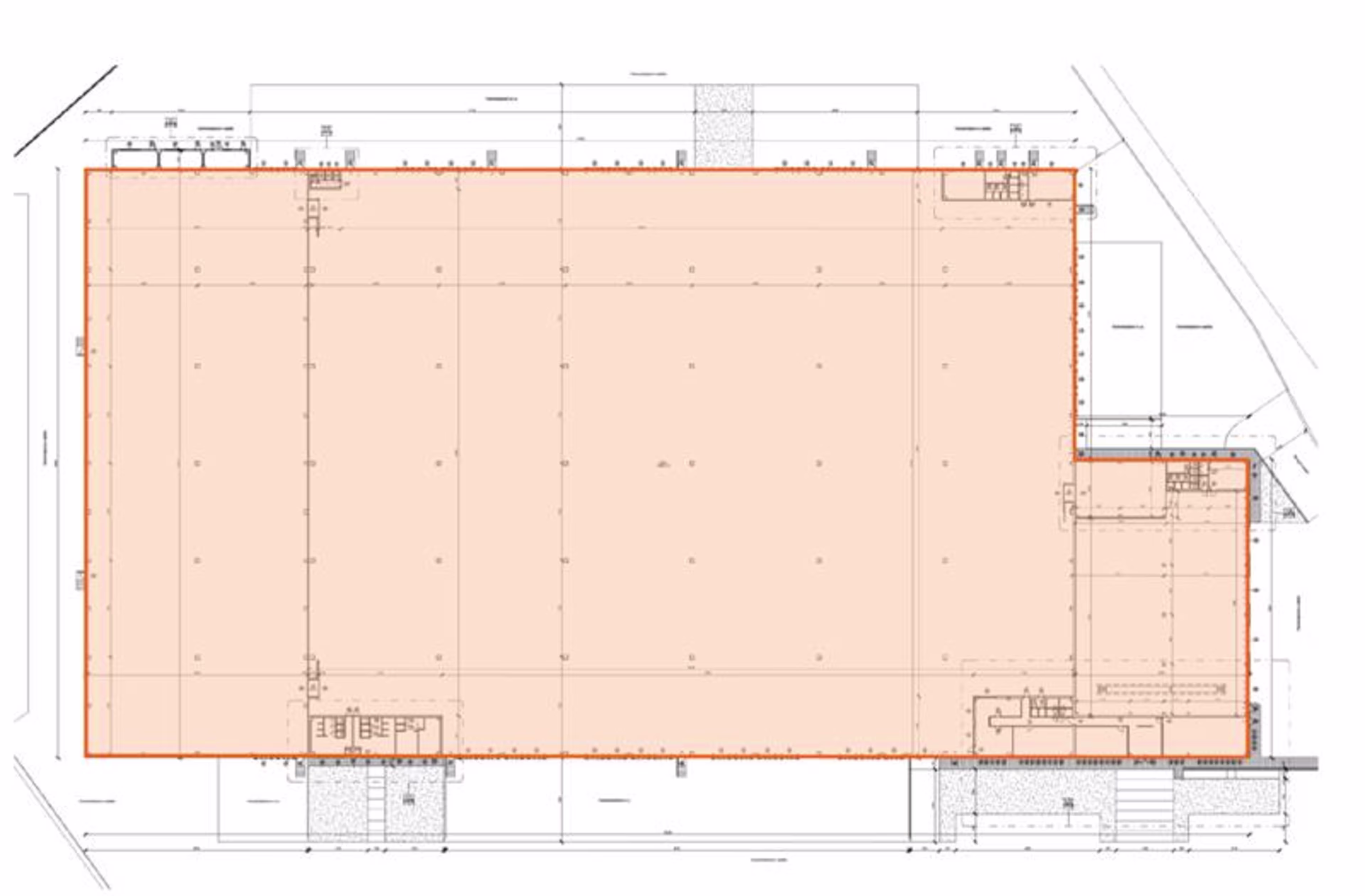
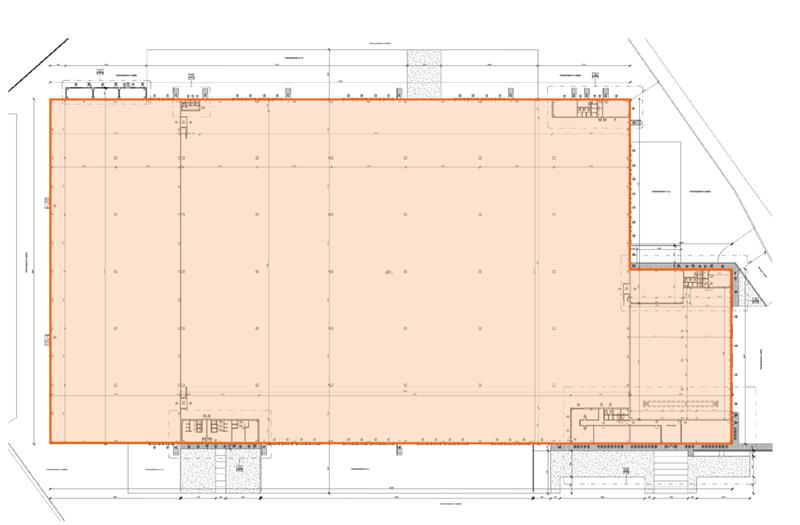
Immobile logistico esistente, immediatamente disponibile per la locazione e situato a Carisio, Vercelli.
Il magazzino di circa 20,000 mq dispone di numerose baie di carico in triplo fronte, altezza interna di oltre 13 metri ed impianto sprinkler.
Immobile indipendente
Spazi disponibili
Location
Il sito beneficia dell'accesso immediato al casello autostradale della A4 (Torino-Milano), principale arteria industriale italiana, che garantisce un rapido collegamento con la A26 (per Genova e l'Interporto di Novara) e la A8/A9 (per Milano, Varese e i valichi alpini), facilitando flussi logistici ottimali verso la Svizzera e l'Europa centrale.
Agenti

Renato Loffredo
Dettagli dell'agente

Marco Ceriani
Consultant Logistic Agency
Dettagli dell'agente





