Ufficio
ID 669359VIA PIEMONTE 38
Roma, 00187
Canone su richiesta
- Spazio disponibile620 m²
- DisponibilitàImmediata

Giulia Amati
Dettagli dell'agente
Piero Bocci
Office Agency
Dettagli dell'agente
- Descrizione
- Caratteristiche
- Location
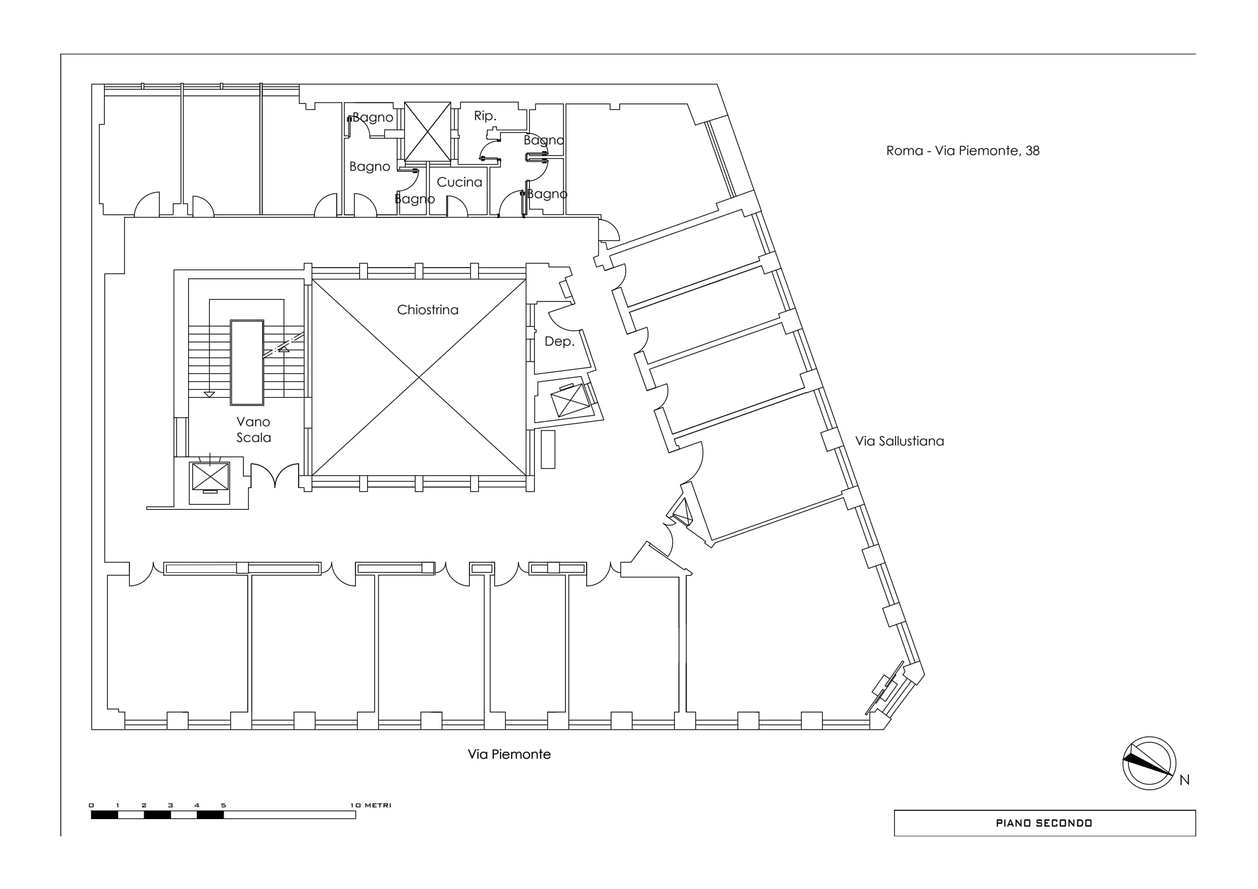
- Planimetria
- Brochure
- Agenti
- Contattaci
Descrizione
L'edificio multi-tenant, che ospita attualmente rinomate aziende, presenta il piano secondo disponibile per la locazione nell'immediato. All'ingresso, una reception con guardiania garantisce controllo e accoglienza. La struttura vanta una pianta estremamente flessibile, permettendo un adattamento ottimale alle esigenze dei conduttori. Gli uffici offrono una combinazione ideale di spaziosi open space, uffici privati e sale riunioni. Tutte gli spazi sono in uno stato di manutenzione ottima e già cablati, pronti per essere occupati.
Spazi disponibili
Location
L'immobile si trova nel centro di Roma, all'interno del Central Business District, il principale quartiere direzionale della capitale. Questa zona strategica ospita le sedi di importanti aziende nazionali e internazionali, oltre a rinomati alberghi e servizi per i professionisti. La posizione è particolarmente vantaggiosa dal punto di vista dei trasporti pubblici: la stazione della metropolitana Barberini (linea A) si trova a soli 500 metri di distanza, garantendo un rapido accesso a tutte le aree della città. La stazione Termini si trova a 1.5 km di distanza.
Agenti

Giulia Amati
Dettagli dell'agente
Piero Bocci
Office Agency
Dettagli dell'agente









