Ufficio
ID 701228Aggiornato
VIALE DEL TINTORETTO 432
VIALE DEL TINTORETTO 432
Roma, 00142
Canone su richiesta
- Spazio disponibile1078 - 11.428 m²
- DisponibilitàImmediata
- Descrizione
- Caratteristiche
- Location
- Planimetria
- Brochure
- Agenti
- Contatta JLL per ulteriori informazioni
Descrizione
L'immobile è stato oggetto di una ristrutturazione integrale certificato LEED Gold e in classe 3 per la la vulnerabilità sismica.
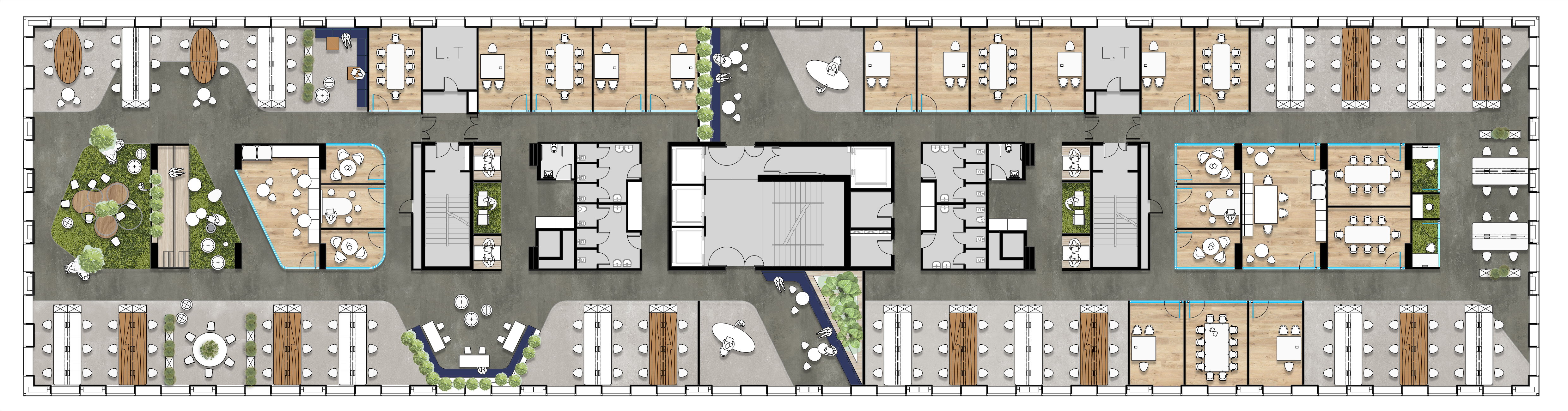
La planimetria di piano ha una forma regolare, rettangolare, ed è caratterizzata da spazi ampi e flessibili garantendo diverse soluzioni di distribuzione sia in open space che in uffici singoli.
L'immobile è ubicato in viale del Tintoretto 432, a Sud di Roma ed in una zona a carattere misto: direzionale e residenziale. È
facilmente raggiungibile con i mezzi privati grazie alla vicinanza con la Via Cristoforo Colombo e la Via Laurentina. Inoltre, sarà disponibile un servizio navetta che collega l'asset alle fermate della metropolitana Eur Laurentina.
A soli 300 metri dall'immobile si trova il centro commerciale i
Granai di Nerva che offre una vasta gamma di servizi tra cui
ristoranti, banca e numerosi negozi.
Spazi disponibili
Location
La proprietà si trova a Viale del Tintoretto 432, a sud di Roma e in un'area mista: sia commerciale che residenziale. È facilmente accessibile con mezzi privati grazie alla sua vicinanza a Via Cristoforo Colombo e Via Laurentina. Inoltre, sarà disponibile un servizio navetta che collega la proprietà alle fermate della metro Eur Laurentina. A soli 300 metri dalla proprietà si trova il centro commerciale Granai di Nerva che offre una vasta gamma di servizi tra cui ristoranti, una banca e numerosi negozi.
Agente

Massimo Livi
Head of Office Agency, Rome
Dettagli dell'agente






