Ufficio
ID 706776EPICURE - VIA STANISLAO CANNIZZARO 71 73
Roma, 00156
Canone su richiesta
- Spazio disponibile220 - 4240 m²
- DisponibilitàI trimestre 2026

Giulia Amati
Dettagli dell'agente
Piero Bocci
Office Agency
Dettagli dell'agente

Massimo Livi
Head of Office Agency, Rome
Dettagli dell'agente
- Descrizione
- Location
- Planimetrie
- Brochure
- Agenti
- Contatta JLL per ulteriori informazioni
Descrizione
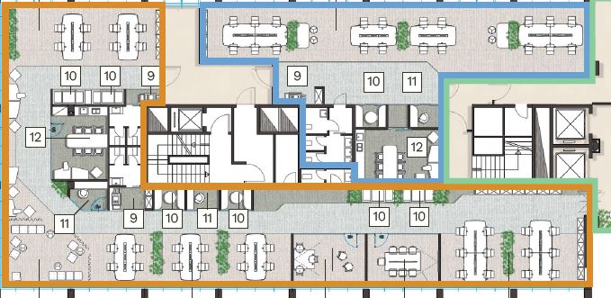
L’immobile è costituito da 5 piani fuori terra oltre ad un piano interrato. L’edificio è suddiviso in tre aree principali: ala nord, ala sud e zona centrale. La ristrutturazione porterà l'edificio ad essere un moderno centro direzionale con ampi spazi di condivisione, giardini e aree di collaborazione. Sale riunioni comuni e una terrazza permetteranno di sfruttare al massimo gli spazi ufficio dei conduttori
Spazi disponibili
Location
Ubicato nel cuore del distretto tecnologico della capitale, Epicure gode di una posizione strategica che facilita il contatto con un grande ecosistema aziendale di assoluto prestigio internazionale. Oltre a posizionarsi in un contesto favorevole dal punto di vista del business e delle relazioni, l’edificio, collocato all’interno del Grande Raccordo Anulare, è anche favorito logisticamente dalla presenza di metropolitana e collegamenti autostradali che lo rende facilmente raggiungibile sia dall’interno della città che dall’esterno.
Agenti

Giulia Amati
Dettagli dell'agente
Piero Bocci
Office Agency
Dettagli dell'agente

Massimo Livi
Head of Office Agency, Rome
Dettagli dell'agente



