Ufficio
ID 707872VIA GIAN DOMENICO ROMAGNOSI 18
Roma, 00187
Canone su richiesta
- Spazio disponibile550 m²
- DisponibilitàImmediata
Piero Bocci
Office Agency
Dettagli dell'agente

Giulia Amati
Dettagli dell'agente
- Descrizione
- Location
- Planimetria
- Brochure
- Agenti
- Contattaci
Descrizione
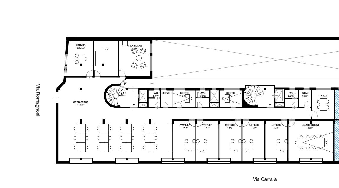
L'immobile è situato nelle adiacenze di Piazzale Flaminio ed è composto da sette piani fuori terra e uno interrato con autorimessa. L'ingresso principale dell'edificio è da Via Romagnosi con una reception condominiale. Gli spazi si presentano in un ottimo stato manutentivo in quanto ristrutturati da poco e si compongono di un open space oltre a diverse stanze singole.
Spazi disponibili
Location
L'immobile si trova nel cuore del centro storico di Roma, a pochi passi da Piazza del Popolo. La zona è ottimamente collegata ed è facilmente raggiungibile sia con la Metropolitana con la stazione "Flaminio" della Metro A a circa 400 mt, sia con le numerose linee di autobus e di tram che servono l’area. Numerosi servizi e ristorazione rendono la zona il luogo ideale per tutte le società.
Agenti
Piero Bocci
Office Agency
Dettagli dell'agente

Giulia Amati
Dettagli dell'agente



